أصبحت تصميم مخططات فلل حديثة البناء، امر مهم للغاية للأشخاص الذين يقبلون على بناء منازلهم. فهنا نأتي بأشكال مخطط فلل دورين Villa plan، وتم بناؤها في المملكة العربية السعودية وظلت من أفخم الفيلات موردن حاليا.
مخططات فلل حديثة؟
هذه المخططات وفقاً لما قدمه أشهر مهندسين المعمارين في جدة، وهنا نتعرف عن كيفية تصميم فلل خليجية من الداخل والخارج أيضا، لعلها تكون هذه التصاميم مفيدة للناس لمن ينوى بناء الفلل الخاصة بهم قريباً.
يمكن الكثير منا يجهل الأسباب الرئيسية وراء البحث عن مخطط فلل دورين مساحة 300، على سبيل المثال.. أو فيلا من دور واحد، ولكن هذا ليس بعيد تماماً على موقعنا قلعة الديكور للتصميم الداخلي، حيث أن اللجوء الى بعض مخططات فلل مهم للغاية وأهمها:
تساعد الأشخاص على التعرف عن كيفية استغلال المساحة الكافية للفيلا، والتي تظهر الشكل النهائي لتصميم الفلل الحديثة قبل بناؤها وتشطيبها.. مما يسمح بإجراء التعديلات قبل الشروع في العمل وتجنب الخسارة.
تعتمد تلك الرسم البياني للفيلا، على عدة عوامل أفضلها الاختيار المناسب للموقع الخاص بالمنزل، و بها مميزات عديدة يتم تحديد كافة الخدمات المتعلقة بالأسرة من حيث غرف النوم وغرفة الأطفال وتصميم المجالس الخاصة بهم.
مخططات فلل حديثة دورين صغيرة؟
تعتبر مخططات فلل حديثة من دورين، تختلف تماماً عن التصميم الخاص بالمنازل العادية. وذلك الاختلاف يمكن ان يكون بسبب المساحات الكبيرة التي تحتويها الفلل، والتي يجب استغلال كل متر بداخلها بعناية بالشكل المثالي لها.
لهذا البعض منا يرغب في تصميم معين للفيلا المكونة من طابقين، والتي طالما حلمت بالتنفيذ الذي في خيالك فعليك أولاً تحديد المخطط الذي يناسب تطلعاتك وأهدافك الشخصية، لذلك سوف نقوم بطرح مجموعة من أحدث المخططات التي يمكنك الاختيار منها بكل سهولة بفرق المساحات التي توفرها فيلتك.
مخطط فلل دورين مساحة 300؟
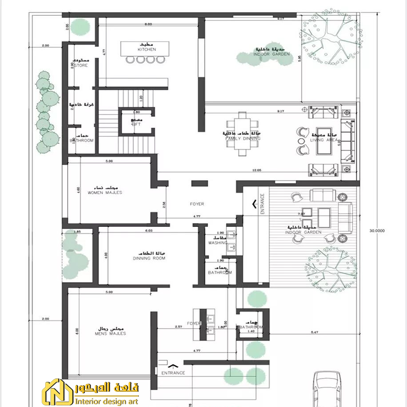
من الجيد أن الفيلات المصممة من دورين، هي واحدة من أشهر الأشخاص الذين يبحثون عنها على مستوى العالم وبالأخص دول الخليج العربي.. والتي تضم الدور الأول غرفة المعيشة وريسبشن والمجلس الأرضي، مع المطبخ وغرفة الجلوس.
أما الدور الثاني منها يشمل غرفة النوم الرئيسية الماستر، وغرفة ريسبشن خاصة بالعائلة ومطبخ صغير وحمامات. والجدير بالذكر أن لكل غرفة حمام خاص بها ومنفرد وكل هذا تم تنفيذه على حسب المخططات للفيلا، و الاستفادة من المساحة الكاملة للتصميم.
تتميز الفيلات الحديثة بالفخامة والرقين التي تظهر ديكورات والتصميم الداخلي للفيلا بشكل عام، وكذلك تصميم واجهات الفلل من الخارج. واضافة حديقة بمساحات خضراء جميلة طبيعية، و كل هذا تم تصميمه بالمخطط الخاص بالفلل التي تراها أمامك الان.
مخطط فلل دورين درج داخلي؟
هنا يوجد مخطط فلل دورين درج داخلي، هو عبارة عن تصميم للطابق الأول بالكامل مخصص لاستقبال الضيوف والأصدقاء، حيث يحتوي على مدخل رئيسي للفيلا وبهو واسع امام الباب ويوجد في اخر التصميم غرفة مجالس رجال فخمه.
أما يوجد في الناحية المقابلة غرفة المكتب الخاص للفيلا، و 3 غرف حمامات وغرفة المغاسل المخصصة للخادمات.. وفي الجهة الأمامية يوجد درج سلالم الفيلا، وهو عبارة عن درج حلزوني التصميم يربط بين الطابق الأول والطابق الثاني لتصميم الفيلا.
يوجد هنا في المنتصف الدرج الداخلي للفيلا مصمم بطريقة حديثة بألوان ذهبية، يأخذنا الى الطابق الثاني الذي يحتوي على غرفة النوم وغرفة المجلس النسائي المخصص لهم، وفي الجانب الآخر من الطابق غرفة الطعام امام المطبخ الرئيسي.
أولاً: من الجيد البحث عن مصمم داخلي ذو خبرة عالية في الهندسة المعمارية وابداع الذوق لتجانس التصاميم مع الوان الجدران من الداخل والخارج أيضا.
ثانيًا: اختيار مخططات فلل مناسبة للمساحة المتوفرة حيث يتم على إثرها تحديد أي من التصميمات التي يجب العمل عليها وقت التنفيذ تحديد الميزانية والمال الخاص بك وعرفة كافة أسعار الخامات والمصنعيات، قبل اختيار المخططات الفلل لذلك كل مخطط رسمي له ميزانية خاصة به.
ثالثًا: استخلاص المرافق والاحتياجات القانونية بشأن أوراق الرسمية للفيلا من حيث الكهرباء والمياه وتركيب الغاز الطبيعي، التي ستحتاجها بشكل عام للعيش بطرق صحيحة وأدمية.
رابعًا: من الجيد ضرورة التعاقد مع جهات ومكاتب متخصصة للهندسة المعمارية، بشكل صحيح حتى تحصل على ما تريده من تصاميم وتنفيذ كما هو متوقع لك على الطبيعة.
مخططات فلل خليجية؟
عندما تبحث عن مخططات فلل خليجية، ربما ما تود الاطلاع عليه هو مخططات الفلل الخليج التي تكون على الطراز السعودي، نظراً لتميزه من جهة الفخامة والبساطة للتصميم.
حيث يوجد إبداع هائل وابتكار حديث للمخطط الظاهر الأن، والكثير من الخيارات التي تناسب اصحاب الأذواق الرفيعة وبالتأكيد تشاهد تصاميم مبهره وتكون أجمل عند التنفيذ الصحيح لها.
تتميز أيضاً مخططات الفلل الخليجية الى الطراز الإسلامي القديم بالإضافة لطابعها العصري من الثقافة العربية البسيطة وهي مستوحاة من أفضل الثقافات والشعوب حول العالم الأوربي والعربي.
مخططات فلل جاهزة Pdf؟
هنا نوضح كافة الصور عن مخططات فلل جاهزة Pdf، والعديد من اشكال ورسومات للفلل الحديثة من جميع الدول التي تتميز بتصاميمها المعمارية من الخارج والداخل بديكورات فريدة وجميلة.
كما وضحنا في السابق عن تصاميم فلل في دولة السعودية، ولاكن هنا أيضا يوجد اجمل تصاميم فلل حديثة وهي من أشهر الدول حاليا في الوطن العربي، وهي دولة الكويت في بناء الفيلات الفخمة.
قد تكون الفلل الكويتية مخصصة للطراز المودرن، ومن المفيد إلقاء نظرة على مخططات فلل جاهزة Pdf، لأن هنا بالفعل تصاميم فاخرة من اشهر المهندسين المحليين والعالميين أيضا.
استقطبت من الإبداع الهندسي والرونق الكلاسيكي، الذي يبحث عنه محبي الفخامة لمنازلهم. من كل أنحاء العالم بسبب النهضة المعمارية التي نراها الان في معظم الدول المتقدمة من أوائل الألفية هذه.
|
| وجهات فلل مودرن |
سنتعرف عن اهم طرق المناسبة لتصميم واجهات فلل مودرن، أولاعليك بالأهتمام بالمبني من الخارج، قبل الشروع فى تصميم الفيلا على اساس ان يتم رسم المبني من الخارج والداخل ايضا على شكل تصاميم 3D.
عد تصميم واجهات المباني من أهم أعمال تصميم المباني، وأول عامل للحكم على المبنى بنجاح أو فشل هو واجهة المبنى لأنه الجزء المرئي من العمل المعماري، ويجب أن تكون وجهات فلل ذات جمال عال لا تعتبر من الواجهة التي تعبر عن شاغلي المبنى.
تصاميم فلل من الخارج يتطلب مرونة كبيرة، لذلك يجب دراسة الفتحات وعلاقاتها مع مساحات الغدد الصماء في الواجهة. مما يجعل تصميم الواجهات عمل فني وليس آليًا.
يجب على المصمم دائمًا أن يتذكر أن الأبعاد الأفقية للمبنى مرئية دائمًا في المشروع، والأبعاد الرأسية مثل ارتفاع النوافذ والأبواب تظهر في وجهات فلل والقطاع الرأسي.لا تحاول تغطية عيوب التصميم بألوان خادعة أو زخارف زائفة، ويجب أن يكون المبنى بسيطًا لأنه الأداة وراء العمل الجميل الذي يجب على كل مهندس معماري التمسك به.
على سبيل المثال، يتم تصاميم فلل من دورين على حسب الرغبة لديك، يجب تحديد فتح نافذة غرفة الطعام على أساس الاستخدام الداخلي لشخص يجلس على كرسي أمام الطاولة يوصي بعمل بنوهات جبس وفتح نافذة غرفة المعيشة اليومية.
يجب أن تأخذ في الاعتبار تعريف الأبعاد على أساس استخدام الشخص يجلس على أريكة أو كرسي مريح، تتمتع جمال الطبيعة من خلال هذا الافتتاح. يجب أن تظهر وجهات الفلل في تكوينها العام في شكل وظيفي متكامل،متصلة ومساحات متصلة ببعضها، وليس مجرد منطقة ذات عدة فتحات من النوافذ والأبواب. التصميم المعماري يمكن أن يجعل الخطوط العمودية تسود في الواجهة، عندما تمتد النوافذ العمودية، تصبح متصلة بالمبنى.
لا سيما في تلقي انطباعا لما في الداخل، وما الديكور الذي يأتي ويدور داخل ذهنك وكل هذ نتيجة لذلك من نظرتك الاولي لوجهات المنزل او جهات الفلل ولا شك في شكل المنزل من الخارج يعطي جمالا غير عادي.
مثل الاسقف المعلق بالداخل لسسقف الفيلا، والكثير من التخطيط والكثير من المعرفة من أساسيات المعمارية، تلميحات عند تصميم الواجهات عند تحديد ارتفاع النوافذ والأبواب يجب أن تأخذ في الاعتبار الجانب الوظيفي.
|
| وجهات فلل مودرن كلاسيك |
|
| وجهات فلل كلاسيك |
|
| وجهات فلل حجر هاشمي |
- يسمى توزيع خطوط الواجهة الاتساق بين مكوناته، مما يجعل الواجهة تبدو مستقرة ومتوازنة.
- لا تقتصر دراسة الضوء على المناطق الداخلية للمبنى، ولكن يجب أن يكون للواجهات الخارجية أيضًا حظ هذه الدراسة.
- إذا كانت الواجهة بأكملها مضاءة أو جميع ظليلة، فقد أضاف التكوين نظرة سلبية وغير مريحة للنظر فيها.
- الواجهة إما متوازنة بشكل أساسي أو غير ضرورية. والتوازن الأساسي هو عادة نتيجة التماثل.
- يجب أن تتناسب خطوط وجهات فلل معًا ويجب أن يعكس الشكل العام للواجهة، الشكل الأساسي لواقع البناء الوظيفي تفضيلات عند تصميم واجهات المباني.
|
| واجهات فلل عربية |
|
| فيلا ملكي كلاسيك |
|
| فناء فيلا من الخارج |
وإذا كانت الخطوط العمودية مستمرة، فإنها تؤكد الاتجاه العمودي في الواجهة لاحظ أنه في المباني المنخفضة الارتفاع من المستحسن التركيز على الاتجاه الأفقي، وهو الشكل الطبيعي في حين تفضل المباني العالية التركيز على الاتجاه الرأسي.
|
| وجهات فلل خليجية |
|
| تصميم فيلا كلاسيك |
|
| وجهات فلل مودرن |
عادة ما يتم رسم الواجهة الأمامية عن طريق إسقاط من الانحناءات الأفقية المعمارية للأدوار، وكذلك الواجهات الجانبية التي تقع في وضع عمودي على الواجهة الأمامية.
منذ يتم تحديد الاتجاهات الأصلية، يظهر اتجاه الإسقاط الأفقي ثم يجب عليك التعرف على اتجاه كل واجهة يتم استدعاؤها بواسطة الاتجاه المحدد بالتصميم.تجدر الإشارة إلى أن استخدام عدد قليل جدا من المواد في واجهة قد يقلل من تأثيرها وجعلها سلبية، وأن الإفراط في استخدام المواد يمكن أن تكون غير ثرثرة وتميل إلى أن تكون مبتذلة.
يجب أن يكون تصميم المباني بما يتماشى مع الوظيفة، بحيث يتم تحديد التصميم الداخلي للمبنى من الداخل إلى الخارج، بحيث يتم تحديد التصميم الداخلي للمبنى أولاً بترميم المكونات المتوقعة التي يتم تحديد أساس المشروع عليها.
من ثم يتم تحديد أشكال وجهات فلل لذا فإن عملية تصميم الواجهات، تحتاج إلى علاقات مستمرة بين هذه الواجهات والإسقاطات الأفقية المعبر عنها من خلال العمل المتكامل، والذي يجب أن يتماشى أيضا مع الجو المحيط.
الى هنا قد نكون أنتهينا من تعريف شامل عن مخططات فلل حديثة، وتعرفنا أيضا عن كيفية أختيار مخطط فيلا من حيث المساحة و موقع المشروع التنفيذي، وطرق البحث عن مخططات فلل حديثة دورين، villa plan design ومن أهمها رسم بياني لفلل خليجية.


.webp)



.webp)

.webp)


.webp)







.webp)

.webp)
.webp)

.webp)

.webp)
.webp)

.webp)
.webp)

















.webp)

.webp)
.webp)
.webp)
إذا كان لديك اي إستفسار أترك تعليق بالأسفل وسوف نقوم بالرد عليك فى أقرب وقت ممكن!